业界动态
    电 话:086-0592-2213035
    传 真:086-0592-5058034
    地址:厦门市同安区同集北路552号(3#厂房一层)
变压器的线圈绝缘
当前位置 : 首页 > 业界动态
变压器的线圈绝缘
* 来源 : * 作者 : mfxmqh * 发表时间 : 2022-12-17 * 浏览 : 40

一、 绝缘结构的型式及分类

图片


图片

      为了保证变压器长期安全可靠地运行,变压器线圈的绝缘结构必须满足以下基本要求:


电气强度(低局放)

耐热强度(油流畅通,无局部过热)

机械强度(抗短路能力强)


二、 绝缘设计的基本要求和原则


绝缘结构设计的基本原则

 要得到一个设计比较合理,成本比较节省,安全可靠性满足要求的绝缘结构,必须运用电场分析、漏磁场分析、温度场分析、电动力分析等各种“场”论分析软件对绝缘结构进行分析和优化,并得出最小安全裕度的绝缘距离及最节省的绝缘布置。

      常规产品的绝缘结构都是在参照经过分析和优化了的比较成熟的结构的基础上进行微调设计的。对于特殊产品,没有现成经验可借鉴的条件下,必须运用各种“场”论分析软件,特别是电场分析软件对绝缘结构进行分析和验证,以使成本比较节省,且安全可靠性达到要求。

      线圈的电气强度,即线圈所承受的绝缘耐压水平及与其他线圈和出头的电压差,是决定变压器绝缘结构布置的主要设计依据。

      线圈绝缘设计依据的理论为“薄纸筒,小油隙”理论。绝缘结构的布置和设计时的目的是降低导体表面及附件油隙的场强,使其耐受场强小于击穿场强,并尽可能的采取减少局放和防止沿面爬电的设计措施。

      角环、挡油圈及纸圈,围屏相互配合布置时要注意保证油路畅通,不要形成死油区。


线圈的主绝缘分为主空道绝缘和端部绝缘,布置时必须合理的分割主空道及线圈端部的油隙,来提高击穿电压,并合理的布置角环来防止线圈端部的沿面爬电。

      典型的主绝缘布置及分析图如下所示:


图片

主空道的布置

       线圈主空道主要由围板和撑条分割成的油隙组成,分割油隙依据“薄纸筒、小油隙”的理论,除线圈成型纸筒为3mm厚外,一般围屏纸板为2mm厚,围屏间撑条油隙一般为6~10mm。紧挨线圈撑条一般为6mm。主空道距离和围屏层数与线圈电压绝缘水平及相邻线圈电压差有关,最外层围屏数与最外线圈的电压绝缘水平和相间电压差,及与引线、油箱、铁芯旁轭距离有关。

      典型的主空道布置如下所示:


图片

端绝缘的布置

      线圈表面和静电环表面是电场强度最高的地方,必须设计成小油隙,不允许大油隙。例如:线饼端部的垫块一般为4mm,由于静电环与线圈首端等电位,场强较高,因此线圈角环与静电环之间的油隙一般为6mm,线圈内外撑条油隙一般为6mm。

       静电环边缘倒角R一般为1/4圆,注意低压线圈和调压线圈静电环面向高压侧电位和场强较高处应加大倒角R。电压较高的线圈静电环周边一般不允许有大油隙,有大油隙时倒角处应加包绝缘,以形成小油隙,降低周边场强。

       角环布置时R角大小应尽量垂直于电场线方向,与等电位面相似或重合(越往上,R角越大),并尽量正、反角环交错布置,以增大爬距。线圈两边角环的数量与线圈电压绝缘水平及相邻线圈电压差有关。

       端部电压越高时,纸圈和角环分割油隙应越小,以降低端部击穿场强。

图片


出头的处理

线圈出头电压等级很高时,需要采取措施降低出头表面场强。如加铜管改变电极形状,加包绝缘,增加出线角环或护槽等绝缘成型件,屏蔽冷压焊接处等。

图片


220kV端部轴向出头示例


图片


三、线圈绝缘的各组成部件


变压器线圈绝缘主要由各种绝缘件组成


绝缘件主要分绝缘纸,绝缘纸板及其它绝缘成型件等。


绝缘件的材料:一般由硫酸盐纤维纸制成,绝缘纸板一般为T4硬纸板,经过密化处理以增加机械强度。绝缘件一般为成型绝缘件,更有利于降低表面场强。


绝缘件的基本要求:边缘光滑倒圆角,无毛刺,无破损起层及裂纹,密化处理,干燥不受潮,无金属粉尘及其它异物。


绝缘件的分类:

纸筒和围屏

撑条

垫块

纸圈

端圈

静电环

角环

出线角环和护槽等


图片



四、 线圈的排布


图片

图片


     变压器高低压绕组的排列方式,是由多种因素决定的。但就大多数变压器来讲,是把低压绕级布置在高压绕组的里边。这主要是从绝缘方面考虑的。理论上,不管高压绕组或低压绕组怎样布置,都能起变压作用。但因为变压器的铁芯是接地的,由于低压绕组靠近铁芯,从绝缘角度容易做到。如果将高压绕组靠近铁芯,则由于高压绕组电压很高,要达到绝缘要求,就需要很多的绝缘材料和较大的绝缘距离。这样不但增大了绕组的体积,而且浪费了绝缘材料。 

     再者,由于变压器的电压调节是靠改变高压绕组的抽头,即改变其匝数来实现的,因此把高压绕组安置在低压绕组的外边,引线也较容易。


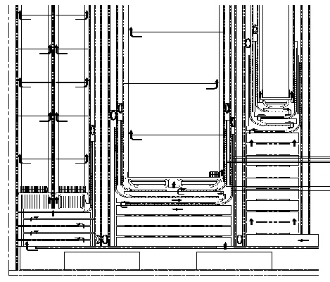
五、 线圈的油路

线圈油道主要有辐向油道和轴向油道。层式线圈只有轴向油道,没有辐向油道。饼式线圈2种油道均有。


线圈的冷却油流方式如下图所示:


图片

    强迫油循环线圈绝缘结构,线圈中增加挡油圈,端部端圈也经常采取措施延长油流路径,上部与常规结构基本一样,外调压一般采取自冷方式。

       设计时应注意保证油流畅通,并要注意防止油流带点,下部导油孔的流速应控制在0.5m/s以内,因此应给出合理的导油孔面积。并注意出头处围屏开孔需封堵严密,防止漏油。

图片

来源:电力变压器视界